Stichting Historische Kring IJsselstein

Uitgave 81-82 1997

  • 1
  • 2 3
  • 4 5
  • 6 7
  • 8 9
  • 10 11
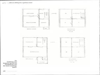
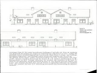
  • 12 13
  • 14 15
  • 16 17
  • 18 19
  • 20 21
  • 22 23
  • 24 25
  • 26 27
  • 28 29
  • 30 31
  • 32 33
  • 34 35
  • 36 37
  • 38